Projektwettbewerb im offenen Verfahren
Neubau Schulhaus Aussenwachten
Winterthur

Ins ehemalige Bauerndorf Aussenwachten sollen künftig über 200 Kinder aus allen Himmelsrichtungen zum Unterricht strömen. Das neue Schulgebäude nimmt die ortstypische Körnung auf – wirkt bodennah und grazil zugleich. Für den direkten Bezug zum Dorf wird der bestehende Bauernhof integriert und bildet als Hort den Auftakt in die Schulzeit. Schulzimmer, Gruppenräume, Aula und Turnhalle verteilen sich unter fünf langgezogenen Giebeln – zwei sind so verschoben, dass ein geschützter Pausen- und Sportplatz entsteht.
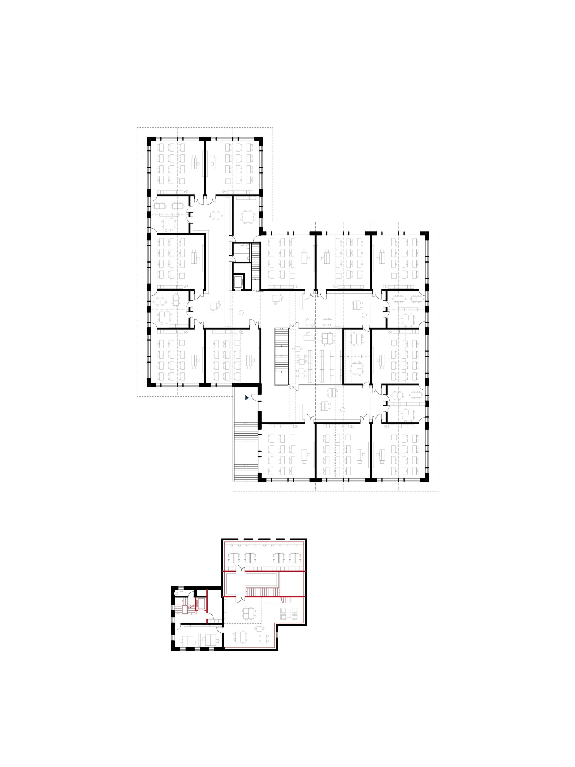
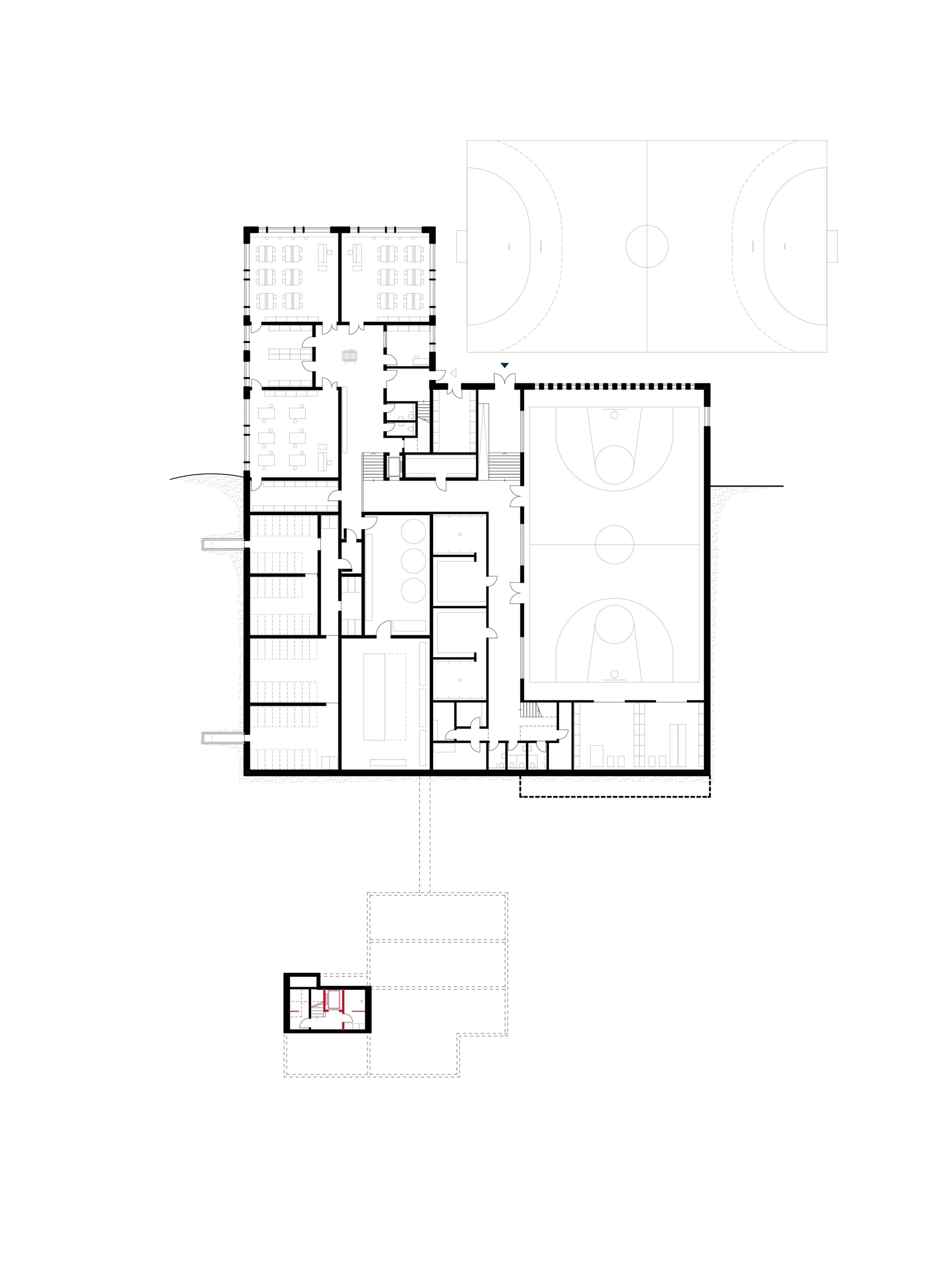
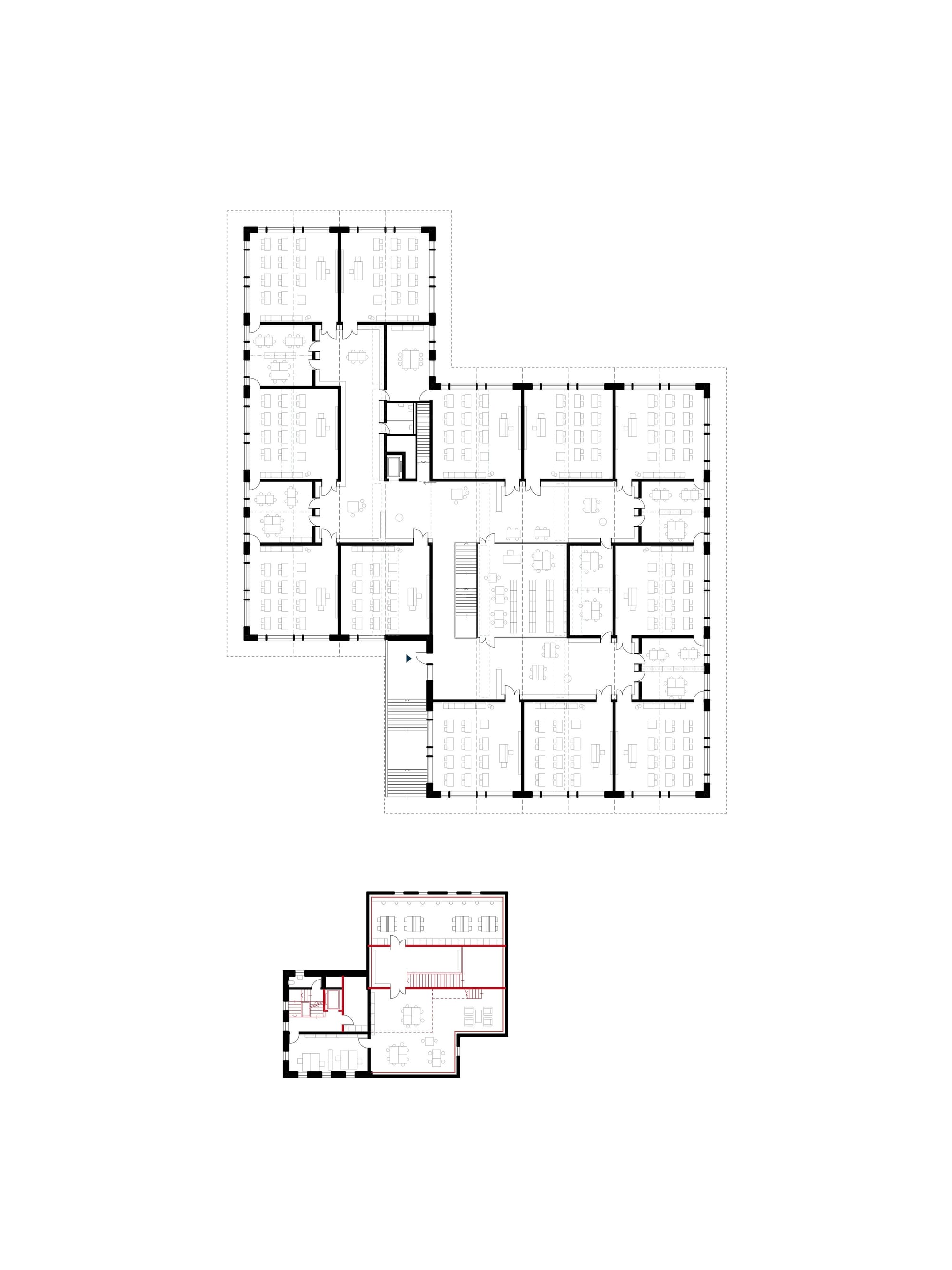
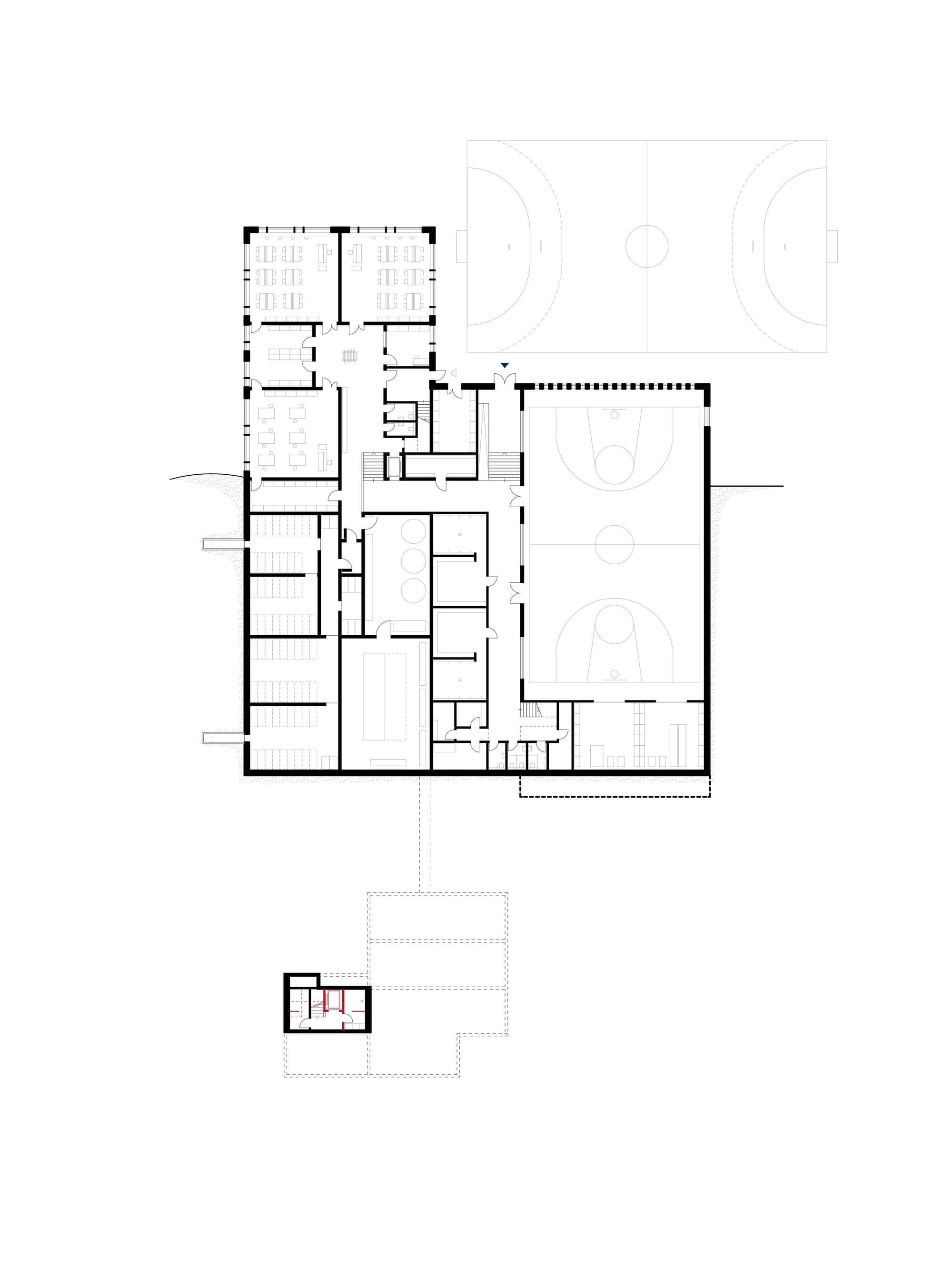
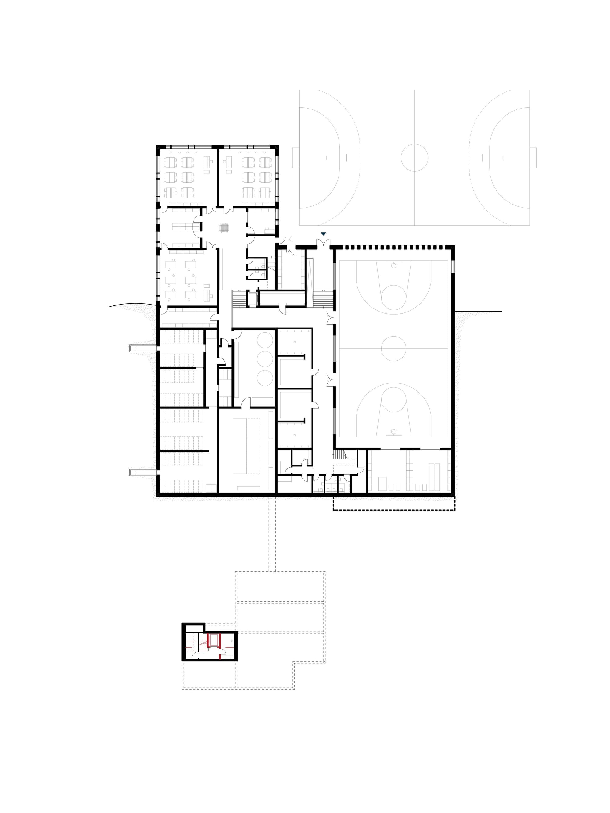
Klassen- und Gruppenzimmer im 1. Obergeschoss umgeben die mit Tageslicht durchflutete, zentrale Bibliothek. Unter dem mehrstufigen Giebeldach entsteht ein «Dorf im Dorf» – jedes Schulzimmer ist ein kleines Haus. Differenzierte Raumhöhen, Querblicke und verschiedene Bespiel-Möglichkeiten bieten eine lebendige Lernlandschaft. Auch im Erdgeschoss sind Zimmer, Turnhalle und Aula gleichzeitig ersichtlich, man kann sich leicht orientieren. Der Bereich für die Lehrpersonen liegt nahe beim Eingang und Pausenplatz. Werkräume für textiles und technisches Gestalten sind im gut belichteten Sockelgeschoss über die zweite Innentreppe rasch erreichbar. Durch vielfältige Erschliessung von aussen und über innere Verbindungen entsteht eine kreative Atelieratmosphäre.
Der Grundriss ist klar, funktional und sehr flexibel und damit für die Schulzimmer wie auch die weiteren Nutzungen geeignet. Die Masse des Rasters sind so gewählt, dass die Spannweiten und Deckenstärken so gering wie möglich gehalten werden, ideal für einen einfachen Holzbau.
Die aufgereihten Giebelhäuser bekommen eine Holzfassade, die sich je nach Funktion und Nutzung im Innern ändert: Deckend gestrichene, blaue Holzplatten im Wechsel mit naturbelassenen Holzleisten. Zusammen mit blauen Stoffmarkisen und einem farbigen Vordach wirkt das Gebäude leicht. Das grosszügige Vordach schützt und beschattet die Holzfassade. Holz ist auch innen erlebbar, zum Beispiel als von unten sichtbare Brettstapeldecken. Die Stützen und Träger der Turnhalle sind in tragendem Massivholz.
Das Projekt ist nach Vorgaben des Wettbewerbs, SNBS-Gold sowie Minergie-P ECO nachhaltig geplant. Die Integration des Bauernhofs spart graue Energie und Ressourcen.



































