Ersatzneubau
Wohnüberbauung Lindenpark
Uzwil

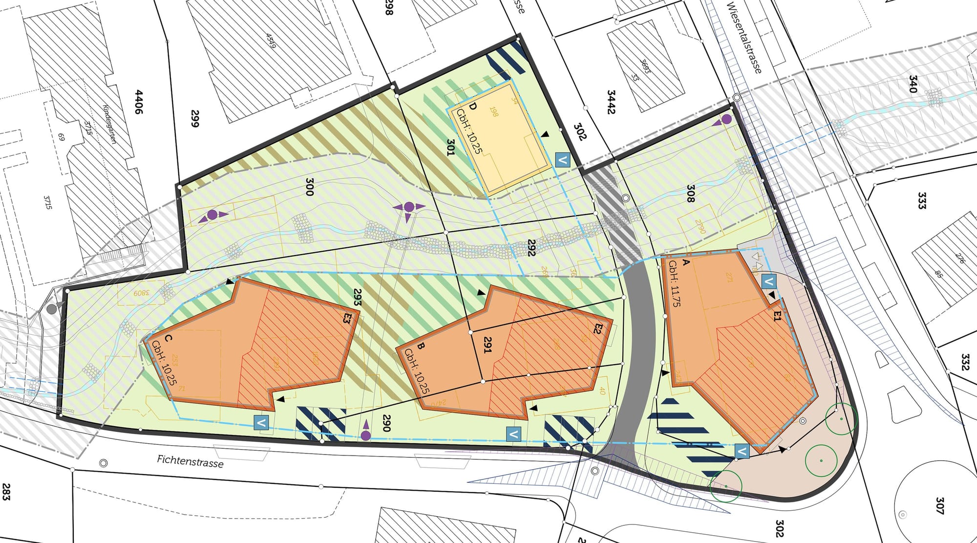
Die Überbauung am Lindenpark umfasst vier Gebäude. Die drei Grösseren entlang der Fichtenstrasse und des offen gelegten Hueberbachs haben eine ähnliche Grundfläche und Gestaltung. Die Volumen sind am Ende konisch und mit Versätzen ausgebildet. Das ermöglicht eine gute Einbindung ins Quartier und verzahnt die Bauten mit dem Freiraum.
Der abgedrehte Körper des Wohn- und Gewerbehauses an der Wiesentalstrasse definiert die Situation am Kreisel und an der Fichtenstrasse. Das einseitig an die Strassenecke platzierte Attikageschoss fasst die grosse Freifläche am Kreisel. Der kleine Ersatzbau an der Gartenstrasse nimmt mit dem Kreuzfirst die Gestaltung der bestehenden Baureihe auf und ist Bindeglied zu den neuen Gebäuden. Über kleine Vorplätze ist der eingezogene Eingangsbereich gut erkennbar. Die Erdgeschosswohnungen sind durch Vorgärten vor Einblicken geschützt. Im Westen befindet sich ein parkähnlicher, auch vom Quartier her zugänglicher Freiraum.
Aus allen Wohnungen sind Aussenbezüge und Sichtverhältnisse ins Freie möglich. Eine Verdickung der Baukörper nach innen mit der orthogonalen, peripheren Anordnung der Schlafzimmer, ergibt Spickel für ansprechende Eingangspartien im Grundriss. Ebenso ergeben sich am Gebäudeende nicht-rechtwinklige Wohn- und Essbereiche mit interessanten Raumverhältnissen. Kabinettähnliche Räume für den Schlaf- und Rückzugsbereich sowie offene Grundrisse für den Tag führen zu qualitativ hochstehenden Wohnungen.
Die Fassaden sind ortstypisch differenziert ausgebildet. Ein erdgeschosshoher Sockel verleiht dem Haus am Kreisel eine gebührende Präsenz. Bei den zwei Gebäuden an der Fichtenstrasse reagieren brüstungshohe Sockel angemessen auf die Situation. Darüber ist ein nachhaltiger Leichtbau in Holz konzipiert.











