Studienauftrag
Langackerstrasse
Herrliberg

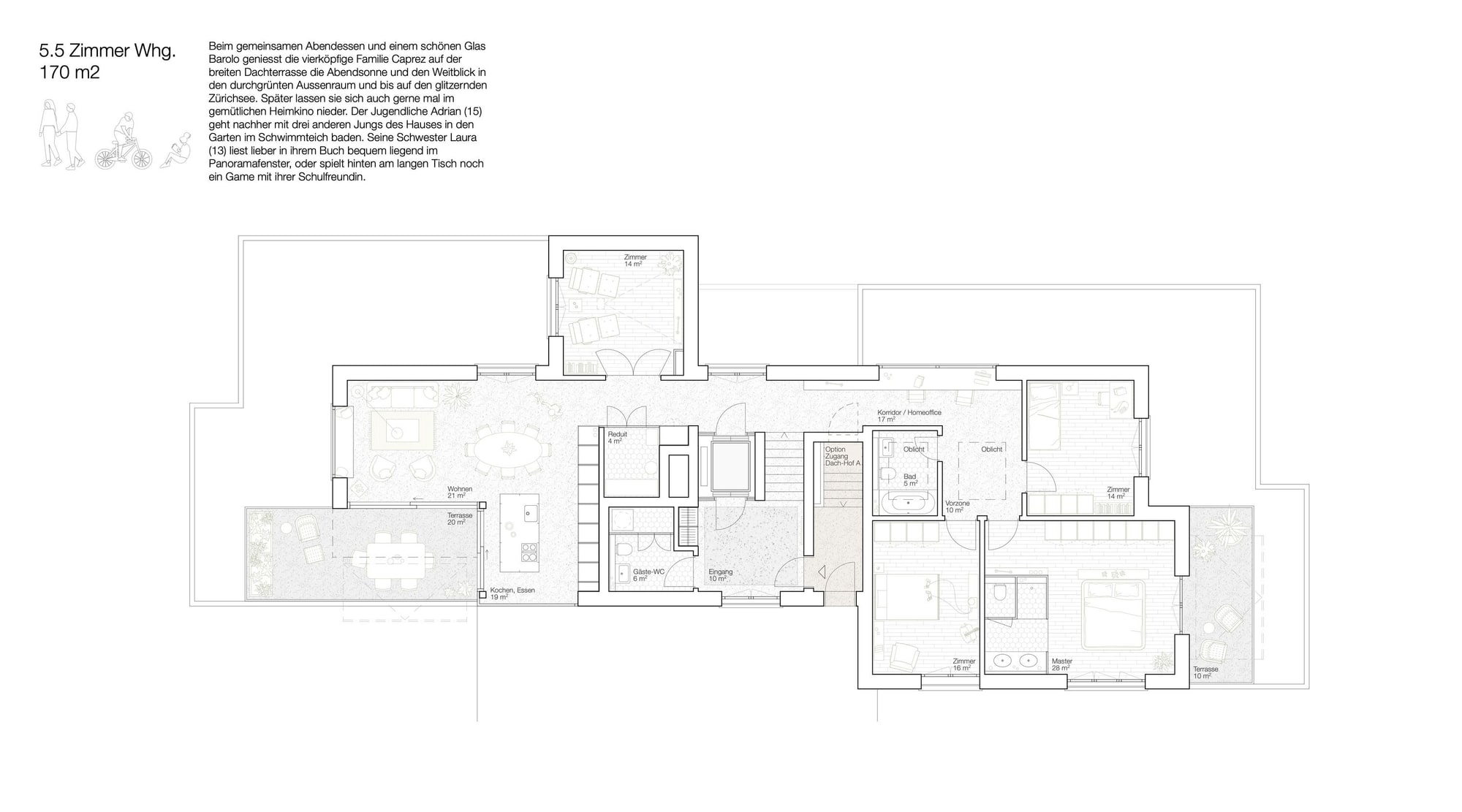
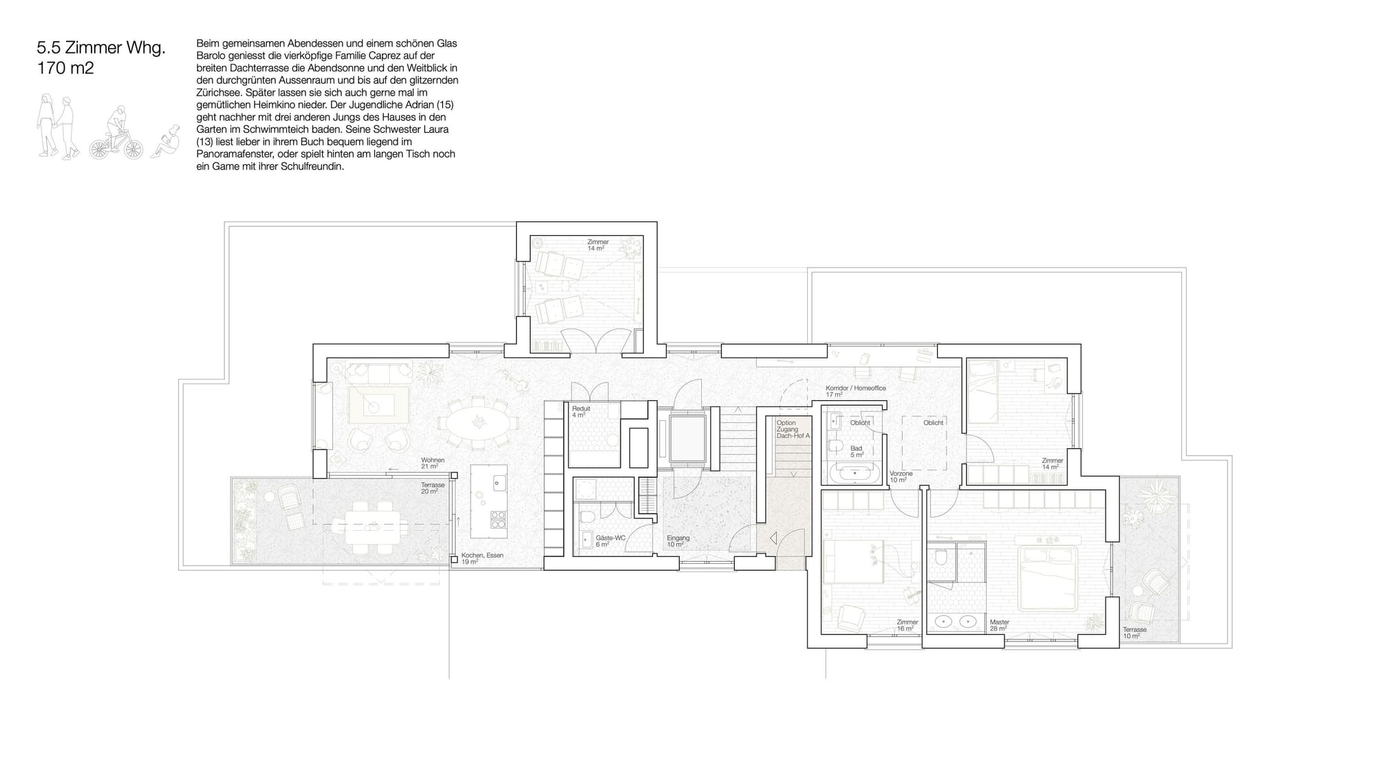
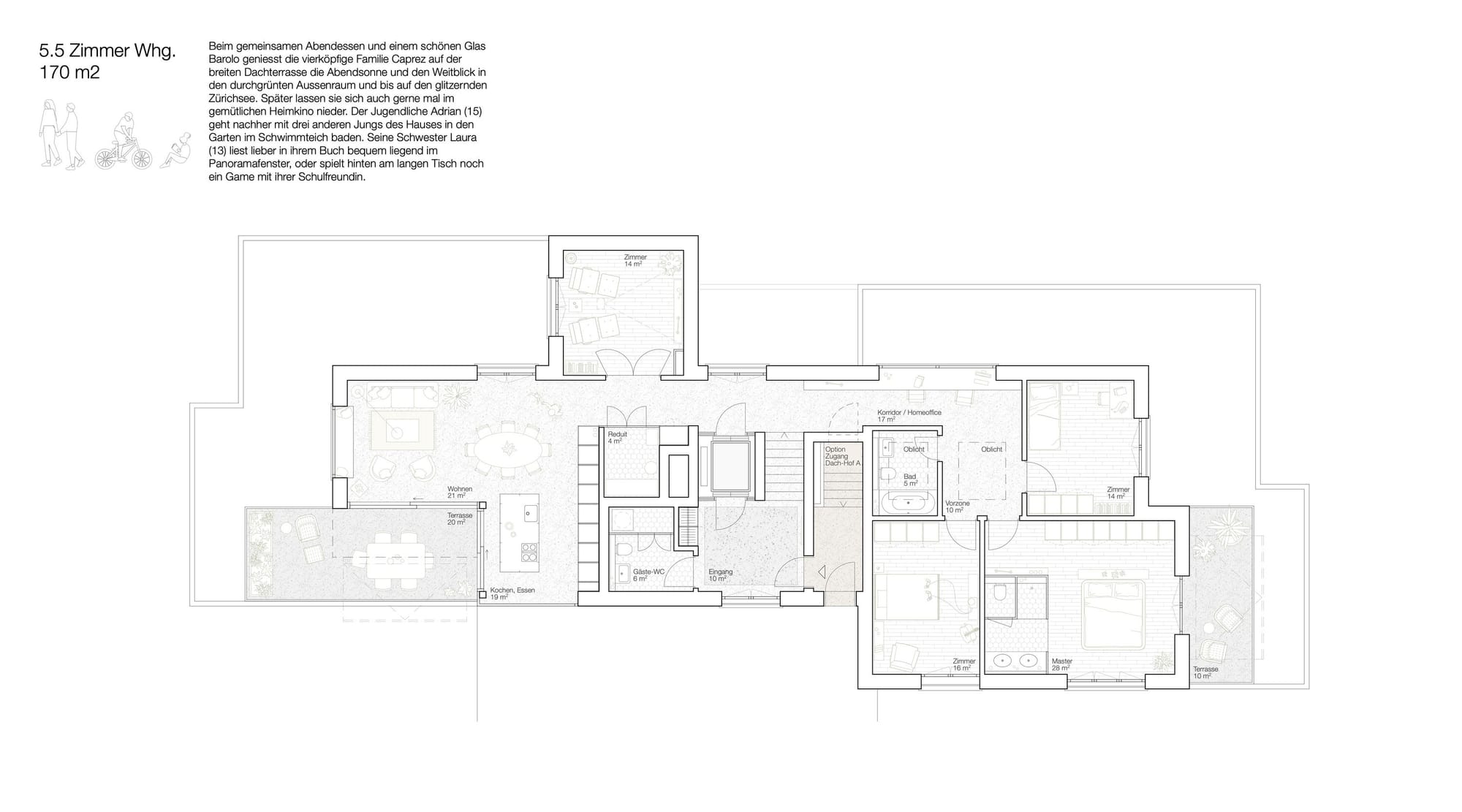
Zwei elegant proportionierte Baukörper folgen der Hanglage von Herrliberg und bieten atemberaubende Ausblicke auf den Zürichsee und die Alpen. Mit ihrer kompakten, dreiarmigen Geometrie entstehen jeweils dreiseitig orientierte Wohnungen mit hoher Aussenraumqualität. Ein Splitlevel mit kompakter Anbindung an das Treppenhaus staffelt die Gebäudekörper seeseitig um ein halbes Geschoss. Die sechs Erdgeschosswohnungen verfügen über grosszügige Privatgärten. Die beiden grossen Attikawohnungen ermöglichen einen vollständigen Rundumblick. An der oberen Parzellenecke befindet sich die übersichtliche Ein- und Ausfahrt in den Autolift zur unterirdischen Garage.
Ausdruck und Materialisierung der Gebäudehülle sind leicht und verspielt. Die beiden Häuser weisen unterschiedliche Farben auf. Das Attikageschoss setzt sich zudem auch farblich leicht und harmonisch von den unteren zwei Geschossen ab. Die Fassade besteht aus robusten, gewellten und farbig werklasierten Faserzementplatten auf einer hinterlüfteten Konstruktion. Im Bereich der Balkone sind hell eingefärbte, gerade Eternitplatten vorgesehen; der Fenster- und Türenanteil ist dort grösser. Vertikal- und Ausstellmarkisen weisen eine passende, dezente und frische Farbigkeit auf.
Da die Auftraggeberin explizit keinen Holzbau wünscht, basiert das Projekt auf einem ressourcenschonenden Massivbau mit reduziertem Materialeinsatz, CO₂-armem Beton und modular trennbaren Bauteilen für lange Lebenszyklen. Alle oberirdischen Bauteile werden mit minimalen Deckenhöhen in Beton ausgeführt. Das Tragwerk ist nutzungsneutral konzipiert, mit ökonomischen Spannweiten und nichttragenden Trennwänden – flexibel anpassbar und zukunftssicher. Die Haustechnik folgt einem Lowtech-Ansatz: Erdsonden, Photovoltaik und natürliche Belüftung ermöglichen einen effizienten, wartungsarmen Betrieb. Begrünte Dächer, versickerungsfähige Wege und naturnahe Aussenräume fördern die Biodiversität, verbessern das Mikroklima und schaffen ein nachhaltiges Wohnumfeld für kommende Generationen.





































